当前位置: 首页 > 产品大全 > 智能化赋能现代人居 小区弱电工程设计与施工图纸全解析

智能化赋能现代人居 小区弱电工程设计与施工图纸全解析

智能化赋能现代人居 小区弱电工程设计与施工图纸全解析

随着信息技术与物联网的深度融合,智能化已成为现代小区建设的核心要素之一。一套完整、专业的小区智能化弱电工程施工图纸,是连接创新设计与可靠落地之间的关键桥梁,它不仅是施工的“语言”和“法规”,更是未来智慧社区高效、安全、舒适运行的基石。本文将系统解析小区弱电工程的设计理念、核心系统构成以及施工图纸的关键要素。

一、设计理念与总体原则

小区弱电工程设计,首要目标是构建一个集成化、智能化、人性化的综合信息管理与服务平台。其设计应遵循以下核心原则:

  1. 前瞻性与可扩展性:技术选型与系统架构需适度超前,预留充足的升级扩容空间,以适应未来5-10年的技术发展。
  2. 安全性与可靠性:作为社区安全的“神经网络”,系统必须具备高可靠性、抗干扰能力和完备的数据安全、物理安防措施。
  3. 实用性与经济性:以业主需求为导向,避免华而不实的功能堆砌,追求最优的性价比和长期运维成本控制。
  4. 标准化与开放性:采用国际、国家和行业标准,确保各子系统接口开放,便于系统集成和第三方设备接入。
  5. 绿色节能:通过智能控制(如照明、空调)降低能耗,践行可持续发展理念。

二、核心子系统构成与设计要点

一套完整的小区弱电工程通常涵盖以下核心子系统,每个子系统在图纸中均有独立而关联的表达:

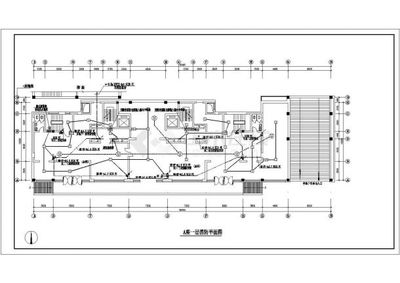
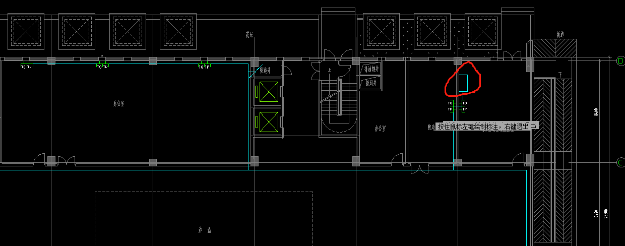
  1. 综合布线系统:是整个弱电系统的“高速公路”。设计需明确工作区、水平、垂直干线、设备间、进线间的点位布局、线缆选型(如超五类、六类、光纤)、路由走向、桥架/管槽规格及安装方式。图纸需清晰标识每个信息点的用途(数据、语音、IPTV等)。
  1. 安全防范系统
  • 视频监控系统:设计监控点位(出入口、主干道、公共活动区、电梯轿厢、地下车库等),确定摄像机类型(球机、枪机、半球)、分辨率、存储时长、后端管理平台架构。图纸需包含设备布置图、管线图及监控中心机柜布置图。
  • 周界入侵报警系统:明确电子围栏、红外对射或视频周界的防区划分、报警主机位置及与监控系统的联动逻辑。
  • 楼宇对讲与门禁系统:设计单元门口机、室内分机、管理中心机的网络拓扑;确定门禁控制点(单元门、重要设备机房)、读卡器/生物识别方式、电锁类型及消防联动释放要求。
  • 住户报警系统:设计燃气泄漏、紧急按钮、门窗磁等探测器在户内的布点。
  1. 信息网络系统:设计小区宽带接入方案(如FTTH光纤到户)、核心/汇聚/接入交换机的层级部署、无线Wi-Fi覆盖范围(公共区域)、网络管理与安全策略。图纸需体现网络拓扑和主要设备安装位置。
  1. 背景广播与紧急广播系统:设计扬声器在园区绿地、道路、大堂、电梯厅的布点,划分广播分区,并确保紧急广播具有最高优先权,符合消防规范。
  1. 智能停车管理系统:设计出入口车道布局、车牌识别/取卡设备点位、车位引导与反向寻车系统(如有)的探测器及指示屏安装,以及管理中心设置。
  1. 机房工程:明确弱电机房(网络中心、安防中心)的位置、面积、环境要求(UPS供电、精密空调、防雷接地、消防、装修标准),并绘制详细的设备布置图、管线引入图。
  1. 其他可选系统:如电子巡更、信息发布、智能家居基础平台、能源管理系统等,根据项目定位和预算选择性设计。

三、施工图纸的关键内容与深度要求

一套合格的施工图纸集,应至少包含以下部分,且达到施工可执行的深度:

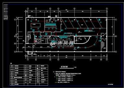
  • 图纸目录与设计说明:总述工程概况、设计依据、系统介绍、施工注意事项、主要设备材料表。这是理解整个项目的纲领。
  • 系统图与原理图:展示各子系统的整体架构、设备组成、信号流向与控制逻辑,是系统的“骨架”。
  • 平面布置图这是施工的直接依据。需在建筑平面图上,清晰绘制所有弱电设备(箱体、面板、摄像机、扬声器等)的安装位置、标高,以及线缆管槽的精确路由、规格、敷设方式。不同系统宜用不同线型和图例区分。
  • 弱电管线综合图:在复杂区域(如地下室),需将弱电各子系统管线与强电、给排水、暖通管道进行综合排布,避免空间冲突,确保美观与安全。
  • 安装大样图与详图:对于机柜安装、摄像机立杆、门禁读卡器安装等关键工艺,提供详细的剖面图、尺寸和做法说明。
  • 接线图与系统连接图:明确主要设备箱(如弱电间配线架、家庭多媒体箱)内部的端接关系,以及设备之间的线缆连接关系。

###

小区智能化弱电工程的设计与图纸绘制,是一项多学科交叉、细致复杂的系统性工作。优秀的设计不仅能满足当前的功能需求,更能为社区注入长久的智慧活力。而一套深度到位、表达清晰的施工图纸,则是将这份智慧蓝图转化为高品质实体工程的最可靠保障。在设计与绘图过程中,密切与建筑、结构、电气、景观等专业的配合,并进行多轮的技术评审与优化,是确保项目最终成功的关键。

如若转载,请注明出处:http://www.xykjpos.com/product/2.html

更新时间:2026-05-29 00:43:29

产品列表

PRODUCT